San Miguel de Salinas:
Dieses Projekt bietet fünf verschiedene Häuser, die gebaut wurden, um die spanische Sonne zu nutzen. Für Villen im Ibiza-Stil stehen drei Hauptmodell
Objekt-Nr.: CLD-2618NB


















Preis:
385.000 €
Wohnfläche ca.:
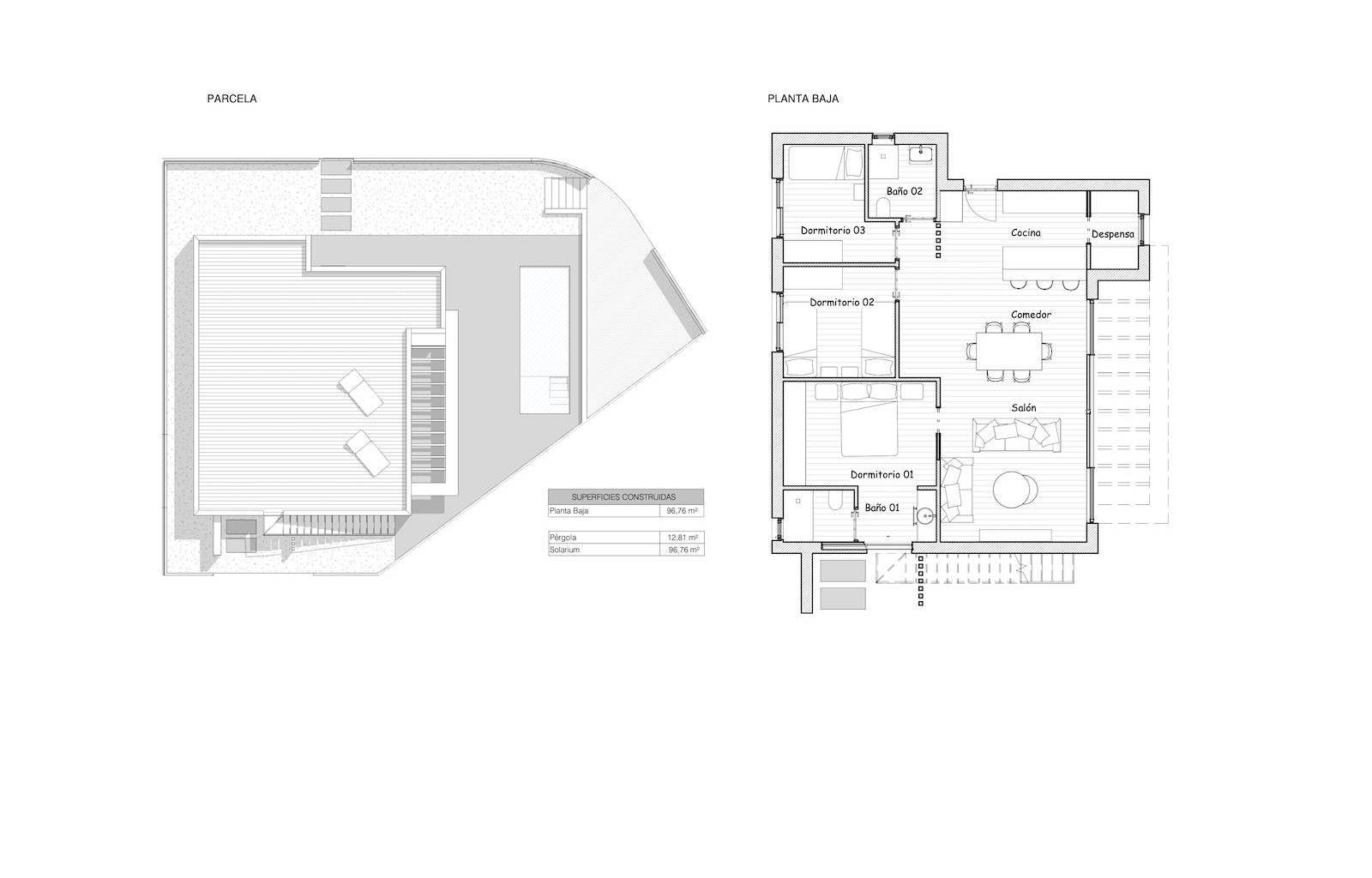
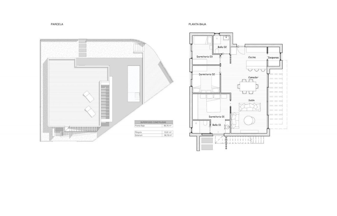
96 m²
Grundstück ca.:
237 m²
Zimmeranzahl:
4
Dieses Projekt bietet fünf verschiedene Häuser, die gebaut wurden, um die spanische Sonne zu nutzen. Für Villen im Ibiza-Stil stehen drei Hauptmodelloptionen zur Verfügung. Jede Villa befindet sich auf einem großen Grundstück mit Parkplatz und privatem Pool. Das Villamartin Golf Resort liegt günstig in der Nähe und diese Villen befinden sich dort. Diese Villen liegen nur 10 Minuten vom wunderschönen Sandstrand und 30 Minuten vom Flughafen Alicante entfernt. Sie haben außerdem einfachen Zugang zu einer Vielzahl von Annehmlichkeiten, darunter Einkaufszentren und Supermärkten. Entlang der 16 km langen Küste von Orihuela, die vom warmen Mittelmeer umspült wird, gibt es 11 Buchten und Strände mit atemberaubendem goldenem Sand. Die beneidenswerte geografische Lage und die günstigen klimatischen Bedingungen machen es möglich, das ganze Jahr über die Strände zu genießen und maritime Aktivitäten auszuüben. Vier Golfplätze, zahlreiche Restaurants und die schönsten Strände und Gegenden der Costa Blanca liegen in der Nähe des Resorts. Das Tüpfelchen auf dem i ist, dass der La Zenia Boulevard, das schönste Einkaufszentrum der Region, in 10 Minuten erreichbar ist.
Zögern Sie nicht, uns mit Ihren Fragen zu kontaktieren!
- Fitted wardrobes
- Double glazing
Haustyp: Villa
Provisionspflichtig: nein
Küche: Einbauküche
Anzahl Schlafzimmer: 3
Anzahl Badezimmer: 2
Garten: ja
Pool: ja
Keller: Abstellraum
Das könnte Ihnen auch gefallen

BURGARD Immobilien
Herr Mike Burgard
Propst-Laumann-Str.25
48727 Billerbeck
Telefon: +49 2543 25559
Mobil: +49 172 5300937
