Murcia:
In der charmanten Region Murcia gelegen, bietet dieser Wohnkomplex 17 Reihenhäuser, die für diejenigen entworfen wurden, die ein komfortables und mod
Objekt-Nr.: 96025






































Preis:
320.500 €
Wohnfläche ca.:
106 m²
Zimmeranzahl:
4
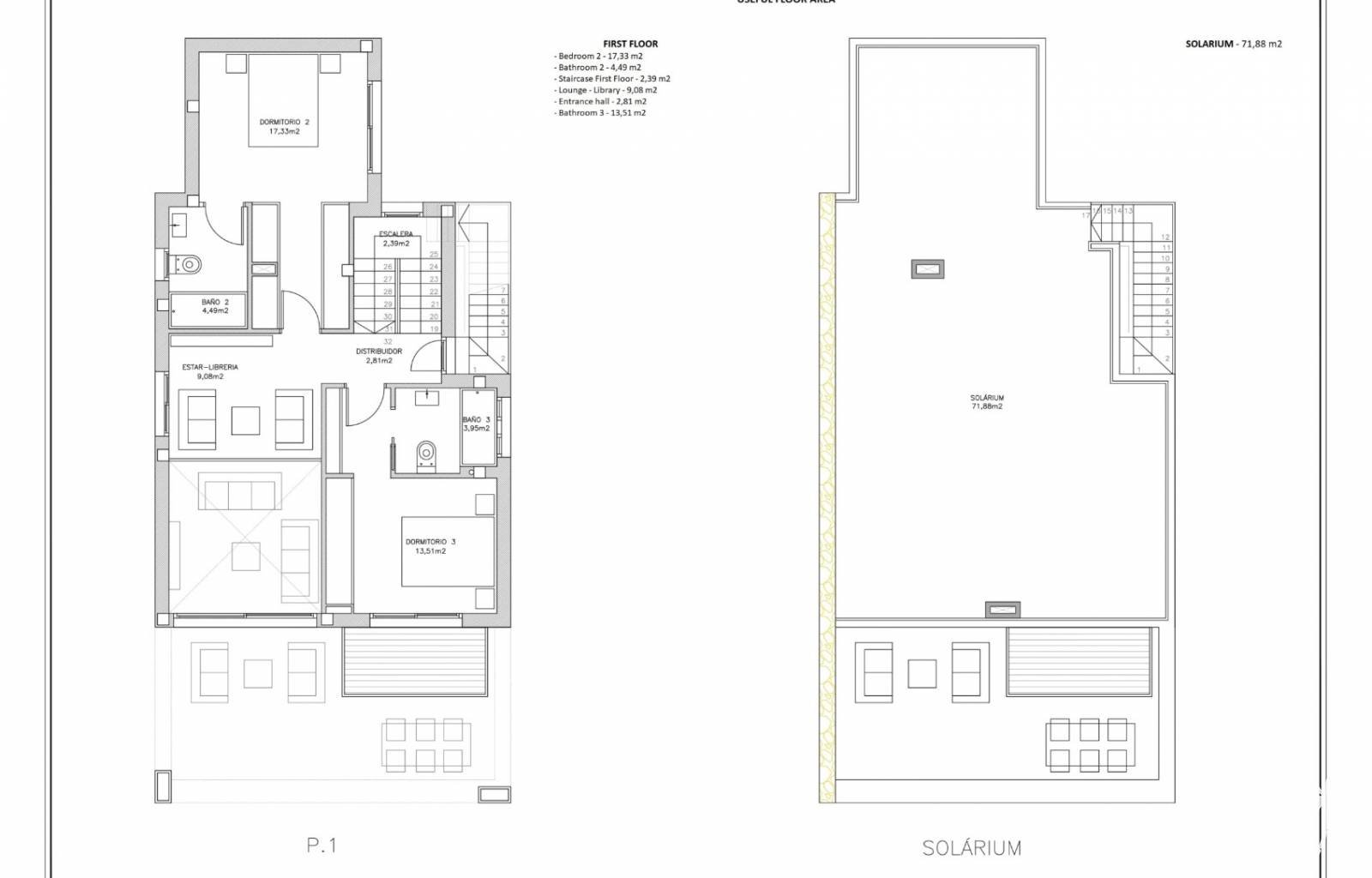
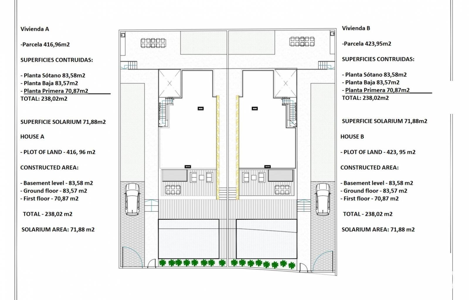
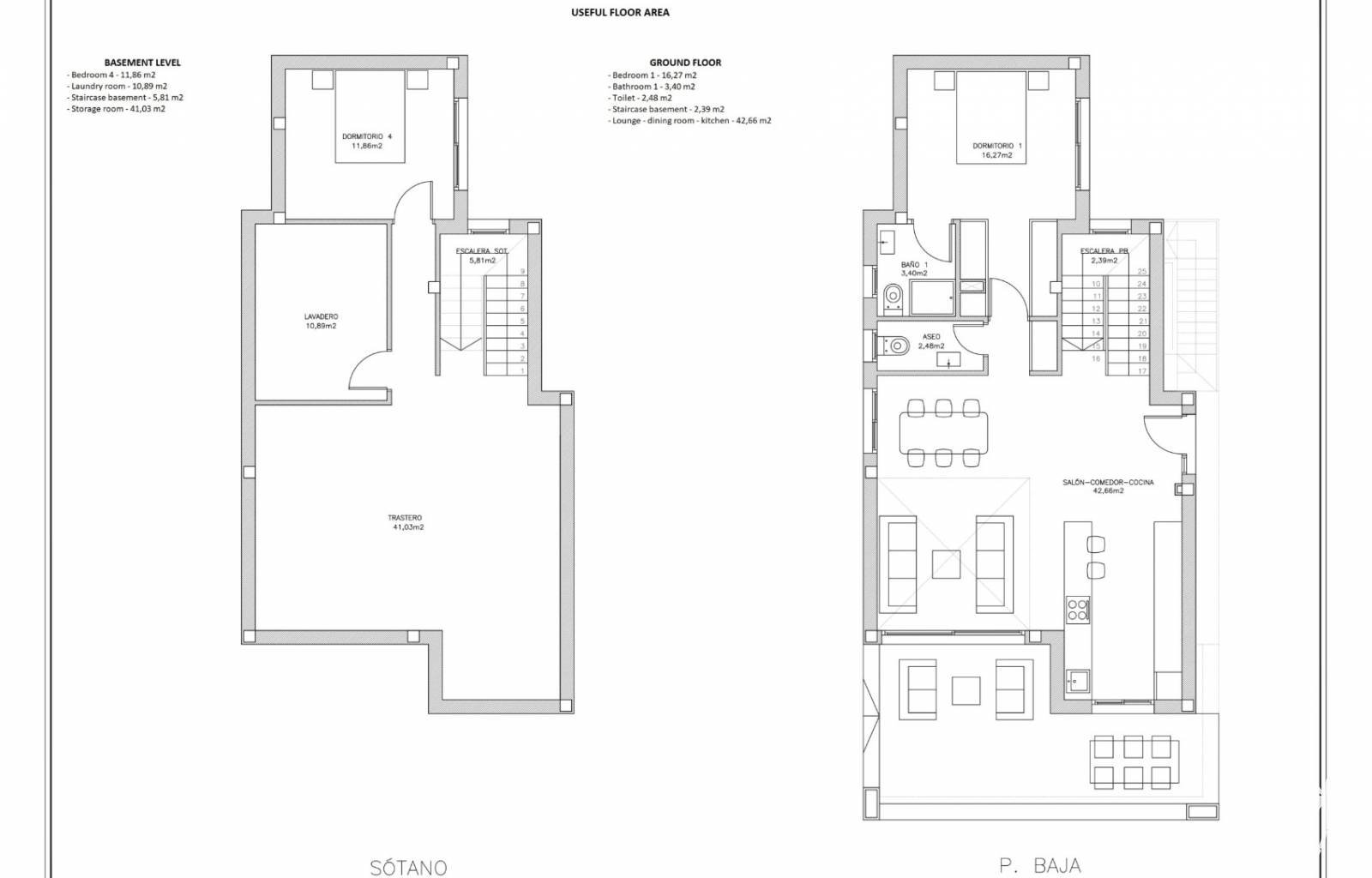
In der charmanten Region Murcia gelegen, bietet dieser Wohnkomplex 17 Reihenhäuser, die für diejenigen entworfen wurden, die ein komfortables und modernes Zuhause suchen. Die Reihenhäuser sind in Konfigurationen mit 2 und 3 Schlafzimmern erhältlich, alle mit 2 Bädern, was flexible Optionen für unterschiedliche familiäre Bedürfnisse bietet. Die Lage ist ideal für Golfbegeisterte, da sie nur 200 Meter von einem Golfplatz entfernt ist, und für Vielreisende, da der Flughafen nur 14 Kilometer entfernt ist, was die Anreise erleichtert. Jedes Reihenhaus ist mit modernen Merkmalen ausgestattet, die Komfort und Funktionalität gewährleisten. Die Böden aus Feinsteinzeug verleihen Eleganz und Langlebigkeit, während elektrische Rollläden und Klimaanlage das ganze Jahr über eine angenehme Atmosphäre gewährleisten. Darüber hinaus optimieren die enthaltenen Elektrogeräte und Einbauschränke den Raum und den Komfort des Hauses.…
AUSSENBEREICHEDie Außenbereiche dieser Reihenhäuser in Murcia sind so gestaltet, dass sie das mediterrane Klima optimal nutzen. Jede Immobilie verfügt über einen privaten Garten, der perfekt ist, um Momente im Freien in einer ruhigen und sicheren Umgebung zu genießen. Darüber hinaus können die Bewohner ein Solarium genießen, das ideal ist, um sich in der Sonne zu entspannen oder die Aussicht zu genießen. Für diejenigen, die Privatsphäre und Luxus schätzen, bieten einige Reihenhäuser einen privaten Pool, der eine persönliche Oase bietet, um sich an heißen Sommertagen abzukühlen. Die Nähe zu einem Golfplatz, nur 200 Meter entfernt, bietet zusätzlichen Reiz für Sportbegeisterte und bietet ein aktives und gesundes Lebensgefühl.INNENBEREICHEDas Innere der Reihenhäuser ist so gestaltet, dass es einen gemütlichen und funktionalen Raum bietet. Mit Optionen von 2 und 3 Schlafzimmern ist jedes Zuhause mit 2 Bädern ausgestattet, was Komfort für Familien unterschiedlicher Größe gewährleistet. Die Böden aus Feinsteinzeug sind nicht nur ästhetisch ansprechend, sondern auch pflegeleicht, was sie ideal für den Alltag macht. Elektrische Rollläden und Klimaanlage sorgen zu jeder Jahreszeit für eine angenehme Atmosphäre. Die enthaltenen Elektrogeräte erleichtern den Alltag, während Einbauschränke effiziente Stauraumlösungen bieten und den Raum ordentlich und organisiert halten. Jedes Detail wurde sorgfältig durchdacht, um ein Zuhause zu bieten, das Stil und Funktionalität vereint.GEMEINSCHAFTSBEREICHEDie Gemeinschaftsbereiche dieses Wohnkomplexes in Murcia sind so gestaltet, dass sie ein Gemeinschaftsgefühl fördern und den Bewohnern zusätzliche Annehmlichkeiten bieten. Die Gemeinschaftsgärten bieten einen gemeinsamen grünen Raum, in dem die Bewohner in einer natürlichen und gepflegten Umgebung entspannen und Kontakte knüpfen können. Der Gemeinschaftspool ist ein idealer Ort, um sich zu erfrischen und die Sonne in Gesellschaft von Freunden und Nachbarn zu genießen. Darüber hinaus verfügt der Wohnkomplex über eine Gemeinschaftsgarage und Parkplätze, die allen Bewohnern Zugang zu einem sicheren Platz für ihre Fahrzeuge bieten. Diese Merkmale machen das Leben in diesem Wohnkomplex komfortabel und bequem und bieten eine perfekte Balance zwischen Privatsphäre und Gemeinschaft.FUENTE ÁLAMO DE MURCIAFuente Álamo de Murcia, in der Region Murcia gelegen, zeichnet sich durch seine Ruhe und seine Verbundenheit mit der Natur aus. Obwohl es sich nicht um einen Massentourismusort handelt, liegt sein Charme in der ländlichen Atmosphäre und der Nähe zu den interessanten Orten. Der Tourismus in Fuente Álamo konzentriert sich auf die ländliche Umgebung und die Verbindung zur Natur, die zum Wandern und zu Aktivitäten im Freien einlädt. Außerdem trägt die Nähe zu den Stränden der Costa Cálida zur Attraktivität des Ortes bei. Der Lebensstil in Fuente Álamo ist beschaulich und in der ländlichen Tradition verwurzelt. Die Bewohner schätzen die Ruhe, das Gemeinschaftsleben und die Verbundenheit mit dem Land. Die lokale Gastronomie basiert auf typischen Gerichten der Region, mit frischen Produkten und authentischen Aromen. Fuente Álamo bietet eine ruhige und ländliche Atmosphäre für alle, die ein ruhiges Leben in einer natürlichen und authentischen Umgebung suchen.MURCIAMurcia, im Südosten Spaniens gelegen, ist eine Stadt mit reicher Geschichte und lebendiger Atmosphäre. In ihrem historischen Viertel finden sich architektonische Schmuckstücke wie die Kathedrale Santa Maria und das Real Casino de Murcia, die das kulturelle Erbe der Stadt widerspiegeln. Der Tourismus in Murcia konzentriert sich auf das historische Erbe, kulturelle Feste und die Gastronomie. Herausragende Ereignisse sind die Prozessionen in der Karwoche und das Festival Internacional del Cante de las Minas (Internationales Festival des Cante de las Minas). Darüber hinaus zieht die natürliche Umgebung, wie der Fluss Segura und der Regionalpark El Valle, Naturliebhaber an. Der Lebensstil in Murcia ist lebendig und einladend. Die Murcianer genießen ein breites kulturelles Angebot, eine reichhaltige Gastronomie auf der Grundlage der Murcianischen Gärtnerei und ein lebendiges Nachtleben. Die Gemeinschaft schätzt die Traditionen und die Wärme der mediterranen Atmosphäre und schafft so eine Stadt, die Geschichte, Kultur und pulsierendes zeitgenössisches Leben miteinander verbindet.
Haustyp: Villa
Provisionspflichtig: nein
Anzahl Schlafzimmer: 3
Anzahl Badezimmer: 2
Pool: ja
Klimaanlage: ja
Anzahl der Parkflächen: 1 x Außenstellplatz
Ausblick: Berge
Energieklasse: B
Das könnte Ihnen auch gefallen

BURGARD Immobilien
Herr Mike Burgard
Propst-Laumann-Str.25
48727 Billerbeck
Telefon: +49 2543 25559
Mobil: +49 172 5300937































