Alfas del Pí:
In der charmanten Stadt Alfaz del Pi gelegen, bietet diese exklusive Wohnanlage eine Vielzahl von Wohnmöglichkeiten, die unterschiedlichen Bedürfniss
Objekt-Nr.: 15226


























Preis:
540.000 €
Wohnfläche ca.:
84 m²
Zimmeranzahl:
3
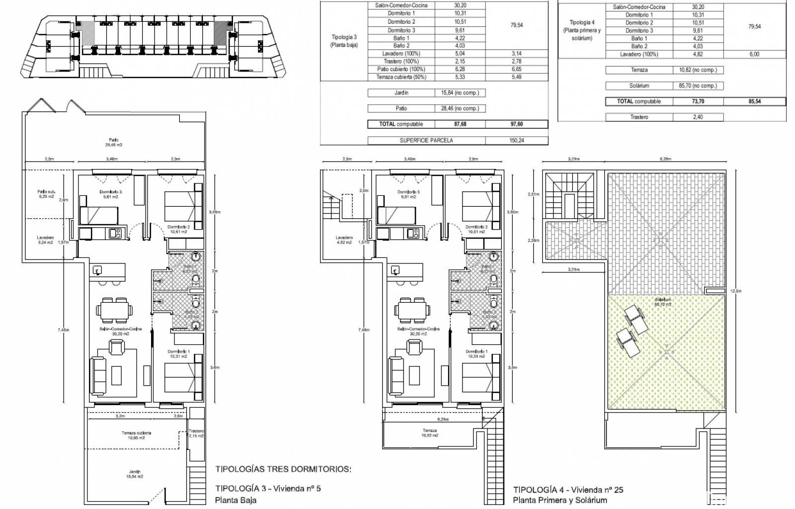
In der charmanten Stadt Alfaz del Pi gelegen, bietet diese exklusive Wohnanlage eine Vielzahl von Wohnmöglichkeiten, die unterschiedlichen Bedürfnissen und Lebensstilen gerecht werden. Mit insgesamt 60 Einheiten können zukünftige Bewohner zwischen Apartments, Erdgeschosswohnungen und Penthäusern wählen, die jeweils darauf ausgelegt sind, Komfort und Funktionalität zu maximieren. Die Lage ist unschlagbar, nur 100 Meter vom Meer entfernt, was spektakuläre Meerblicke von vielen der Immobilien garantiert. Darüber hinaus erleichtert die Nähe zum Flughafen, nur 8,2 Kilometer entfernt, die Fortbewegung für Vielreisende. Diese privilegierte Umgebung kombiniert die Ruhe der Küste mit der Bequemlichkeit, alle notwendigen Dienstleistungen in der Nähe zu haben.AUSSENBEREICHEDie Außenbereiche dieser Wohnungen wurden entworfen, um einen Raum zur Entspannung und zum Genießen im Freien zu bieten.…
Alle Immobilien verfügen über Terrassen, die ideal sind, um das mediterrane Klima und die beeindruckenden Meerblicke zu genießen. Darüber hinaus beinhalten einige Typologien private Gärten, die ein persönliches Refugium für Naturliebhaber bieten. Die Penthäuser verfügen über ein Solarium, einen perfekten Ort, um in völliger Privatsphäre Sonne zu tanken. Die Integration von Pergolen in einigen Außenbereichen verleiht Eleganz und Funktionalität und ermöglicht es, diese Räume das ganze Jahr über zu genießen.INNENBEREICHEDas Innere der Wohnungen ist darauf ausgelegt, maximalen Komfort und Modernität zu bieten. Die Apartments sind mit Keramikböden ausgestattet, die einen zeitgenössischen Touch verleihen und pflegeleicht sind. Die Integration moderner Haushaltsgeräte und eines Smart-Home-Systems stellt sicher, dass jedes Zuhause für die täglichen Bedürfnisse gerüstet ist. Klimaanlage und Fußbodenheizung sorgen das ganze Jahr über für eine angenehme Temperatur. Einbauschränke bieten effizienten Stauraum und halten die Räume ordentlich und frei von Unordnung. Die Wohnungsaufteilung variiert, mit Optionen von 1 bis 5 Schlafzimmern und 1 bis 5 Bädern, die sich an Familien jeder Größe anpassen.GEMEINSCHAFTSBEREICHEDie Gemeinschaftsbereiche dieser Wohnanlage sind darauf ausgelegt, einen aktiven und sozialen Lebensstil zu fördern. Die Bewohner können weitläufige Gartenbereiche genießen, die perfekt zum Spazierengehen oder einfach zum Entspannen im Freien sind. Der Gemeinschaftspool ist ein idealer Ort, um sich an heißen Sommertagen abzukühlen und bietet einen sicheren und komfortablen Raum für die ganze Familie. Diese Einrichtungen stellen sicher, dass die Bewohner eine hochwertige Umgebung genießen können, ohne die Anlage verlassen zu müssen.ALFAZ DEL PIAlfaz del Pi an der spanischen Costa Blanca ist ein touristischer Schatz, der die Gelassenheit des mediterranen Lebens mit einem breiten kulturellen Angebot verbindet. Bekannt für seine schöne Promenade und kristallklaren Strände, bietet diese Küstenenklave das ganze Jahr über Wassersport und ein beneidenswertes Klima. Der Tourismus in Alfaz del Pi wird durch seine kulturelle Vielfalt und Veranstaltungen wie das Filmfestival LAlfàs del Pi bereichert, das internationale Filmliebhaber anzieht. Die Altstadt mit ihrem traditionellen Charme verbindet sich harmonisch mit der Modernität des städtischen Lebens. Der Lebensstil hier ist entspannt, mit einer starken Präsenz ausländischer Einwohner, die ein ruhiges Leben am Meer genießen. Die lokale Gastronomie, die Gastfreundschaft und die Schönheit der Natur machen Alfaz del Pi zu einem charmanten Ziel, um das Beste des mediterranen Küstenlebens zu genießen.
Wohnungstyp: Etagenwohnung
Provisionspflichtig: nein
Anzahl Schlafzimmer: 2
Anzahl Badezimmer: 2
Pool: ja
Klimaanlage: ja
Ausblick: Seeblick
Energieklasse: B
Das könnte Ihnen auch gefallen

BURGARD Immobilien
Herr Mike Burgard
Propst-Laumann-Str.25
48727 Billerbeck
Telefon: +49 2543 25559
Mobil: +49 172 5300937





















































