Torre del Rico:
In der charmanten Umgebung von Torre del Rico gelegen, bietet dieses freistehende Chalet die perfekte Kombination aus Privatsphäre und Komfort. Entwo
Objekt-Nr.: 91781




























































Preis:
340.000 €
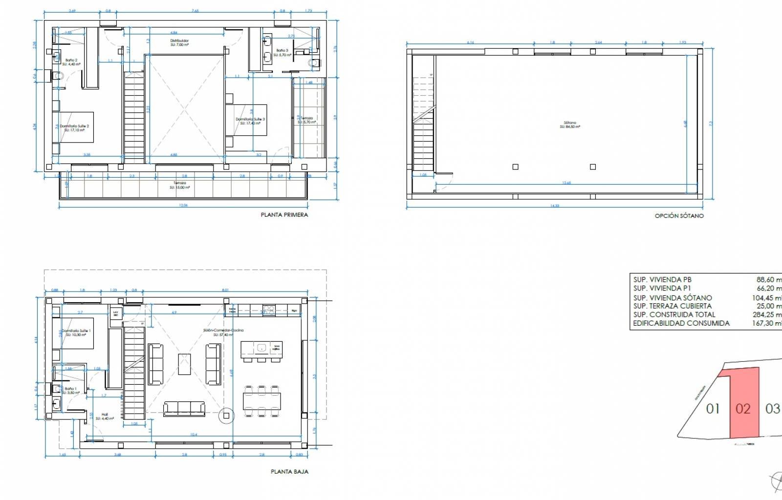
Wohnfläche ca.:
168 m²
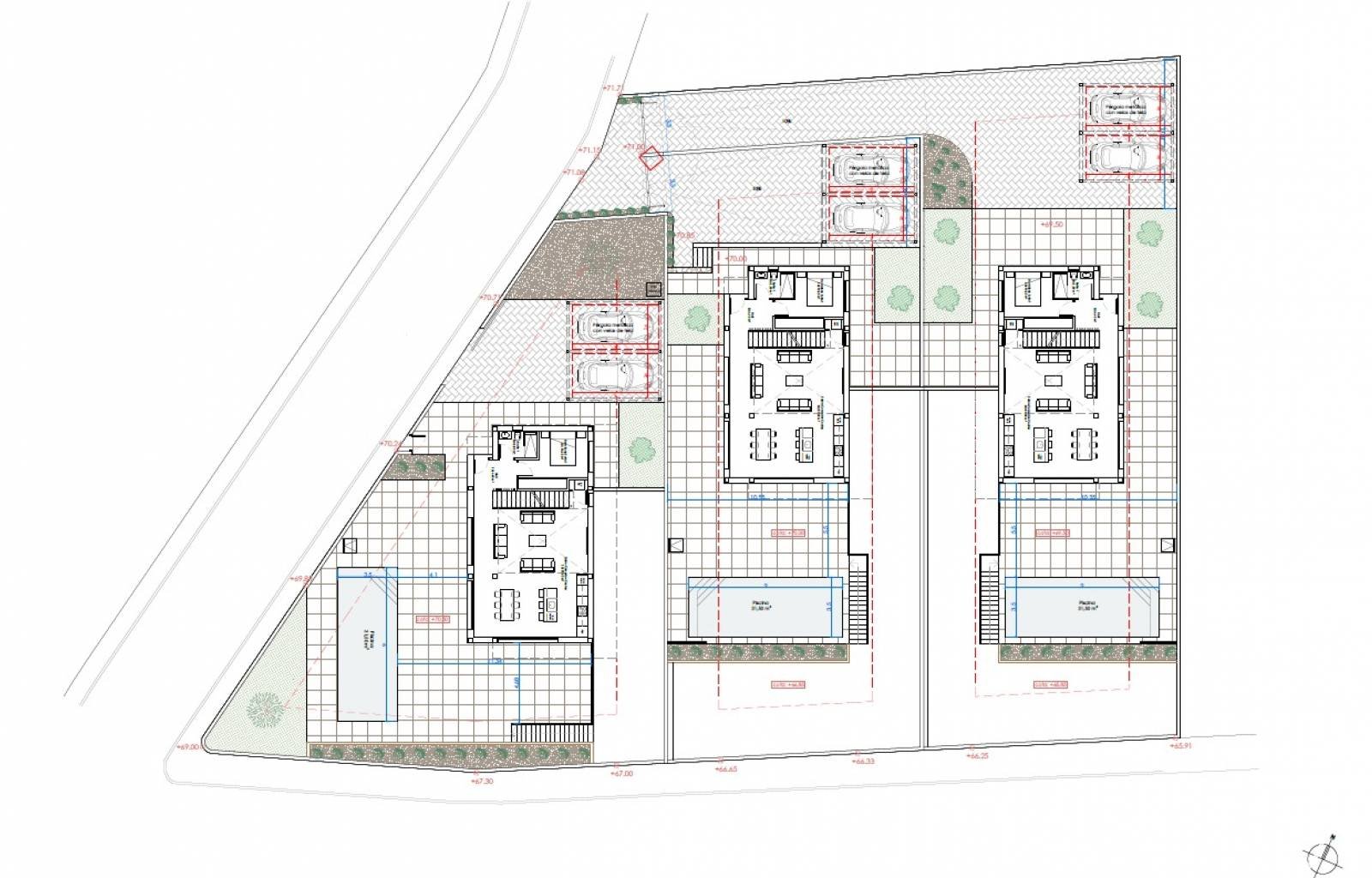
Grundstück ca.:
5.000 m²
Zimmeranzahl:
4
In der charmanten Umgebung von Torre del Rico gelegen, bietet dieses freistehende Chalet die perfekte Kombination aus Privatsphäre und Komfort. Entworfen für diejenigen, die ein exklusives Zuhause suchen, verfügt es über eine Raumaufteilung, die den Raum und die Funktionalität maximiert. Die Immobilie zeichnet sich durch ihren zeitgenössischen Stil und hochwertige Ausführungen aus und bietet eine gemütliche und elegante Atmosphäre. Mit einer Bauweise, die den Komfort in den Vordergrund stellt, ist dieses Chalet ideal für Familien, die eine ruhige und sichere Umgebung genießen möchten.AUSSENBEREICHEDer Außenbereich dieser Immobilie ist eine wahre Oase der Ruhe.…
Er verfügt über einen privaten Garten, der einen perfekten Raum für Freizeitaktivitäten im Freien bietet. Die Terrasse ist ideal, um die Aussicht und das mediterrane Klima zu genießen und wird zum perfekten Ort für Familientreffen oder einfach zum Entspannen. Darüber hinaus gibt es einen privaten Pool, der einen Hauch von Luxus und Exklusivität verleiht und das Wohnerlebnis in diesem Chalet erhöht. Der Zugang zur privaten Garage garantiert Komfort und Sicherheit für die Fahrzeuge.INNENBEREICHEDas Innere des Chalets ist so gestaltet, dass es maximalen Komfort und Funktionalität bietet. Mit drei Schlafzimmern, die jeweils mit Einbauschränken ausgestattet sind, wird ein geräumiger und organisierter Raum gewährleistet. Die beiden Bäder sind in einem modernen und funktionalen Stil gestaltet. Die Küche ist mit hochwertigen Geräten ausgestattet, die die täglichen Aufgaben erleichtern. Der Boden aus Feinsteinzeug verleiht den Räumen einen Hauch von Eleganz und Langlebigkeit. Darüber hinaus ermöglicht die Vorinstallation der Klimaanlage, das ganze Jahr über eine angenehme Temperatur zu halten.
Haustyp: Stadthaus
Provisionspflichtig: nein
Anzahl Schlafzimmer: 3
Anzahl Badezimmer: 2
Energieklasse: B
Bei Abschluss eines Kaufvertrages wird keine Vermittlungs-/ Nachweisprovision vom Käufer fällig.
Die von uns gemachten Informationen beruhen auf Angaben des Verkäufers bzw. der Verkäuferin. Für die Richtigkeit und Vollständigkeit der Angaben kann keine Gewähr bzw. Haftung übernommen werden. Ein Zwischenverkauf und Irrtümer sind vorbehalten.
Wir weisen auf unsere Allgemeinen Geschäftsbedingungen hin. Durch weitere Inanspruchnahme unserer Leistungen erklären Sie die Kenntnis und Ihr Einverständnis.
Das könnte Ihnen auch gefallen

BURGARD Immobilien
Herr Mike Burgard
Propst-Laumann-Str.25
48727 Billerbeck
Telefon: +49 2543 25559
Mobil: +49 172 5300937























































