Fortuna:
In der charmanten Ortschaft Fortuna gelegen, bietet dieses freistehende Chalet eine ruhige und einladende Umgebung. Es ist für diejenigen konzipiert,
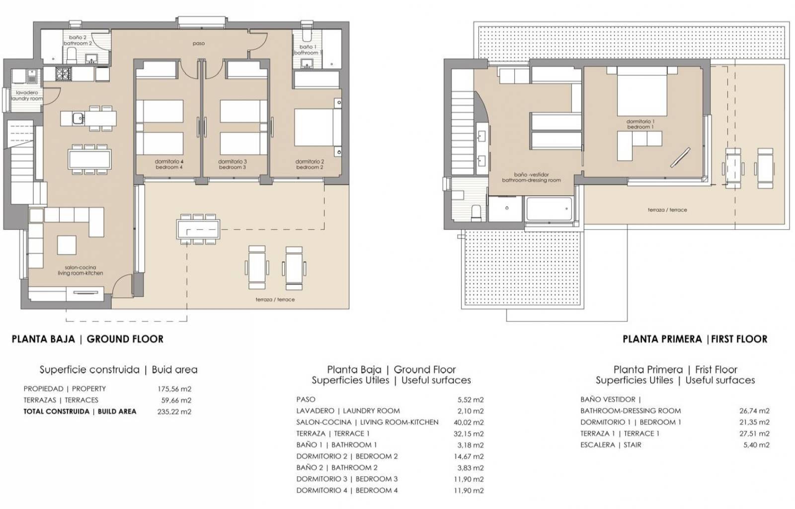
Objekt-Nr.: 11848






















Preis:
350.000 €
Wohnfläche ca.:
160 m²
Grundstück ca.:
365 m²
Zimmeranzahl:
4
In der charmanten Ortschaft Fortuna gelegen, bietet dieses freistehende Chalet eine ruhige und einladende Umgebung. Es ist für diejenigen konzipiert, die ein geräumiges und modernes Zuhause suchen und verfügt über drei Schlafzimmer und drei Badezimmer, was ein perfektes Gleichgewicht zwischen Komfort und Funktionalität bietet. Die Immobilie besticht durch ihr zeitgenössisches Design und hochwertige Ausstattungen, ideal für diejenigen, die Stil und Komfort im Alltag schätzen.AUSSENBEREICHEDer Außenbereich dieses freistehenden Chalets ist eine wahre Oase der Ruhe. Es verfügt über einen privaten Garten, ideal, um die frische Luft und entspannende Momente mit der Familie zu genießen. Zudem gibt es einen privaten Pool, ideal, um sich an heißen Sommertagen abzukühlen. Die Terrasse ist ein weiteres Highlight dieser Immobilie und bietet zusätzlichen Raum für Freizeitaktivitäten im Freien und angenehme Abende.INNENBEREICHEDas Innere des Hauses ist so gestaltet, dass es maximalen Komfort bietet.…
Die Böden aus Feinsteinzeug verleihen einen Hauch von Eleganz und sind pflegeleicht. Das Haus ist mit Klimaanlage ausgestattet, die das ganze Jahr über für ein angenehmes Ambiente sorgt. Elektrische Rollläden bieten zusätzlichen Komfort und Modernität. Die Einbauschränke in den Schlafzimmern bieten viel Stauraum und sorgen für Ordnung und Organisation im Haus. Darüber hinaus verfügt die Immobilie über eine Garage, die einen sicheren Parkplatz bietet.FORTUNAFortuna in der Region Murcia ist bekannt für sein Thermalwasser und sein historisches Erbe. Seine berühmten Thermalbäder, wie das Balneario de Leana, ziehen Besucher an, die auf der Suche nach therapeutischen Behandlungen und Wellness sind. Der Tourismus in Fortuna konzentriert sich auf Thermalwasser und Heilbäder, in denen die Menschen Entspannung und Gesundheit suchen. Zum historischen Erbe gehören auch die Iglesia de la Purísima und das Castillo de Fortuna, die einen Einblick in das kulturelle Erbe der Stadt bieten. Der Lebensstil in Fortuna ist beschaulich und auf Wohlbefinden ausgerichtet. Einwohner und Besucher genießen das entspannte Leben, in dem Thermalbäder und der Kontakt mit der Natur eine zentrale Rolle spielen. Die lokale Gastronomie bietet traditionelle Gerichte aus der Region mit mediterranen Einflüssen. Fortuna bietet ein ruhiges und therapeutisches Umfeld für alle, die Erholung und Erneuerung in einer historischen und natürlichen Umgebung suchen.
Haustyp: Villa
Provisionspflichtig: nein
Anzahl Schlafzimmer: 3
Anzahl Badezimmer: 3
Klimaanlage: ja
Ausblick: Berge
Energieklasse: B
Das könnte Ihnen auch gefallen

BURGARD Immobilien
Herr Mike Burgard
Propst-Laumann-Str.25
48727 Billerbeck
Telefon: +49 2543 25559
Mobil: +49 172 5300937


















































































