Pilar de la Horadada:
In der charmanten Gemeinde Pilar de la Horadada gelegen, bietet dieser Wohnkomplex eine Auswahl von 22 High-Bungalow und Low-Bungalow Wohnungen. Dies
Objekt-Nr.: 45155




































































































Preis:
340.000 €
Wohnfläche ca.:
74 m²
Zimmeranzahl:
3
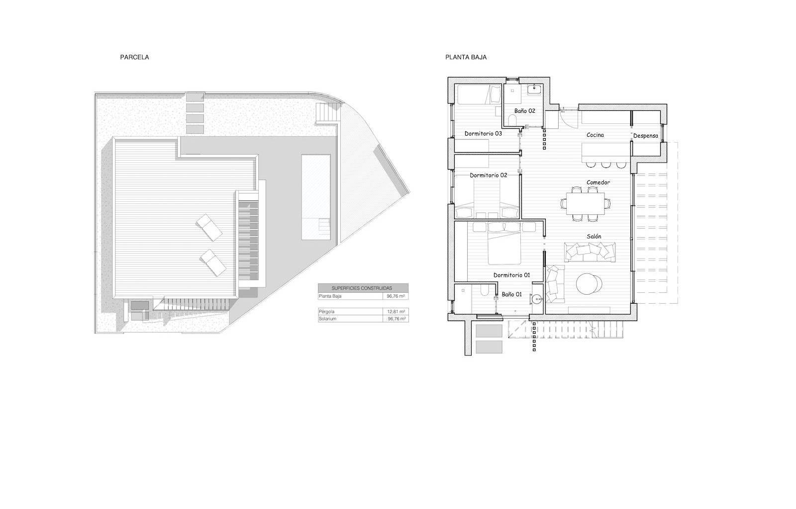
In der charmanten Gemeinde Pilar de la Horadada gelegen, bietet dieser Wohnkomplex eine Auswahl von 22 High-Bungalow und Low-Bungalow Wohnungen. Diese Immobilien sind für diejenigen konzipiert, die ein Zuhause in erstklassiger Lage suchen, nur 2 km vom Meer entfernt. Die Nähe zur Küste ermöglicht es, die Meeresbrise und eine unvergleichliche natürliche Umgebung zu genießen. Die Wohnungen sind in Konfigurationen mit 2 und 3 Schlafzimmern erhältlich, alle mit 2 Bädern, was sie ideal für Familien und Paare macht, die zusätzlichen Raum wünschen.AUSSENBEREICHEDie Außenbereiche dieser Wohnungen wurden sorgfältig gestaltet, um das mediterrane Klima optimal zu nutzen. Jede Immobilie verfügt über einen privaten Garten, perfekt zum Entspannen oder für Aktivitäten im Freien. Darüber hinaus bieten die Terrassen zusätzlichen Raum, um die Aussicht und die Umgebung zu genießen.…
Für diejenigen, die zusätzlichen Außenraum suchen, ist das Solarium eine ideale Option, das einen privaten Ort zum Sonnenbaden oder Genießen der Sternennächte bietet. Die Pergolen verleihen einen Hauch von Eleganz und Funktionalität, indem sie Schatten und Stil für die Außenbereiche bieten.INNENBEREICHEDas Innere dieser Wohnungen vereint Funktionalität und Stil. Die Böden aus Feinsteinzeug verleihen einen modernen Touch und sind pflegeleicht. Elektrische Rollläden und Einbauschränke sind Standardmerkmale, die Komfort und Stauraum bieten. Die Vorinstallation der Klimaanlage stellt sicher, dass die Wohnungen für die Installation von Klimasystemen vorbereitet sind, angepasst an die Komfortbedürfnisse jedes Eigentümers. Die Raumaufteilung der Wohnungen ist so gestaltet, dass sie geräumige und helle Räume bietet, mit einer klaren Trennung zwischen Tages- und Nachtbereichen.GEMEINSCHAFTSBEREICHEDie Gemeinschaftsbereiche dieses Wohnkomplexes sind darauf ausgelegt, einen aktiven und entspannten Lebensstil zu fördern. Die Gemeinschaftsgärten bieten einen grünen Raum, in dem die Bewohner die Natur genießen können, ohne das Haus zu verlassen. Der Gemeinschaftspool ist ein idealer Treffpunkt, um sich zu sozialisieren und an heißen Sommertagen abzukühlen. Diese Gemeinschaftsbereiche sind dazu gedacht, das Wohnerlebnis in diesem Komplex zu ergänzen, indem sie zusätzliche Räume für Freizeit und Genuss für alle Bewohner bieten.PILAR DE LA HORADADAPilar de la Horadada an der Costa Blanca ist ein Küstenort mit feinen Sandstränden und einer ruhigen Atmosphäre. Seine Küstenlinie, wie z. B. Playa de Mil Palmeras, zieht Besucher auf der Suche nach Sonne und Meer an und macht ihn im Sommer zu einem beliebten Reiseziel. Der Tourismus in Pilar de la Horadada konzentriert sich auf die Strände und die Wasseraktivitäten, wie Schnorcheln und Tauchen. Die Nähe zu interessanten Gebieten wie dem Naturpark Salinas de San Pedro wertet das touristische Angebot zusätzlich auf. Der Lebensstil in Pilar de la Horadada ist entspannt und auf das Meer ausgerichtet. Die Einwohner genießen ein ruhiges Leben mit einem breiten gastronomischen Angebot, das auf frischem Fisch und mediterranen Gerichten basiert. Die Gemeinde schätzt die Nähe zum Meer und die lokalen Traditionen. Pilar de la Horadada bietet eine ruhige Küstenatmosphäre für alle, die ein entspanntes Leben am Mittelmeer an der Costa Blanca suchen.
- Solarium
- Pergola
Wohnungstyp: Etagenwohnung
Provisionspflichtig: nein
Anzahl Schlafzimmer: 2
Anzahl Badezimmer: 2
Pool: ja
Energieklasse: B
Das könnte Ihnen auch gefallen

BURGARD Immobilien
Herr Mike Burgard
Propst-Laumann-Str.25
48727 Billerbeck
Telefon: +49 2543 25559
Mobil: +49 172 5300937




























