Algorfa:
  Neubau von zwei exklusiven Luxusvillen, die den höchsten Ansprüchen an Komfort, Stil und Eleganz gerecht werden, in Algorfa, in der Nähe des La Finca 					
					
              Objekt-Nr.: CLD-2940NB          
				



















Preis:
 995.000 €
Wohnfläche ca.:
 199 m²
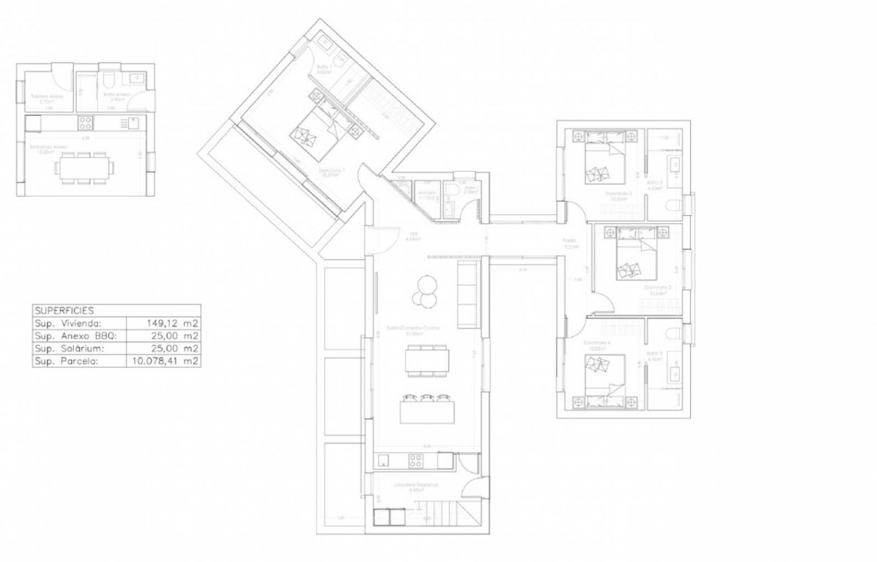
Grundstück ca.:
 10.078 m²
Zimmeranzahl:
 5
Neubau von zwei exklusiven Luxusvillen, die den höchsten Ansprüchen an Komfort, Stil und Eleganz gerecht werden, in Algorfa, in der Nähe des La Finca Golf Resort. Die Standard Villa verfügt über vier geräumige Schlafzimmer und bietet eine bebaute Fläche von 199 m², während die Premium Catalina-Version fünf Schlafzimmer mit bis zu 381 m² bietet und so großzügigen Platz, natürliches Licht und den nötigen Komfort für das Familienleben und die Unterhaltung bietet.…
       Diese beiden exklusiven Luxusvillen sind mit einem offenen Grundriss gestaltet und verfügen über eine moderne Küche, die nahtlos in das Wohnzimmer integriert ist, große Fenster und Terrassenschiebetüren für reichlich Belüftung und Licht sowie direkten Zugang zu einer privaten Terrasse und einem Swimmingpool, einer wahren Oase im Freien, die ideal zum Entspannen unter der mediterranen Sonne ist. Zu Ihrer Bequemlichkeit stehen Ihnen vor Ort private Parkplätze zur Verfügung. Jede Villa verfügt über eine hochwertige Ausstattung und hochmoderne Annehmlichkeiten für optimalen Komfort und Langlebigkeit. Entdecken Sie diese brandneuen Luxusvillen in der malerischen Stadt Algorfa, eingebettet auf riesigen rustikalen Grundstücken mit über 10.000 m², die absolute Privatsphäre und eine unvergleichliche natürliche Umgebung garantieren.
 *Weitere Informationen zur Gegend: Das Dorf Algorfa liegt einige Kilometer landeinwärts, südlich der Costa Blanca. Algorfa liegt am Ufer des Flusses Segura. Hier befindet sich der berühmte Golfclub La Finca. Das Dorf ist von duftenden Zitrusfeldern umgeben. Hier finden Sie Ruhe und Entspannung, fernab vom Trubel der Küstenstädte. Darüber hinaus bietet Algorfa viele Geschäfte, wie beispielsweise viele Bars, Boutiquen und Restaurants! Sie finden die perfekte Balance zwischen Ruhe und Unterhaltung. 
    
- Fitted wardrobes
- Double glazing
Haustyp: Villa
Provisionspflichtig: nein
Anzahl Schlafzimmer: 4
Anzahl Badezimmer: 4
Garten: ja
Pool: ja
Das könnte Ihnen auch gefallen

BURGARD Immobilien
Herr Mike Burgard
Propst-Laumann-Str.25
48727 Billerbeck
Telefon: +49 2543 25559
Mobil: +49 172 5300937
 
							


 
           
          































