Los Belones :
 
												NEUGEBAUTE ANLAGE IN LOS BELONES, LA MANGA MAR MENOR
Luxuriöser Neubaukomplex mit 5 Immobilien (3 Stadthäuser und 2 Villen) mit privatem 					
					
              Objekt-Nr.: 12056          
				

















Preis:
 355.000 €
Wohnfläche ca.:
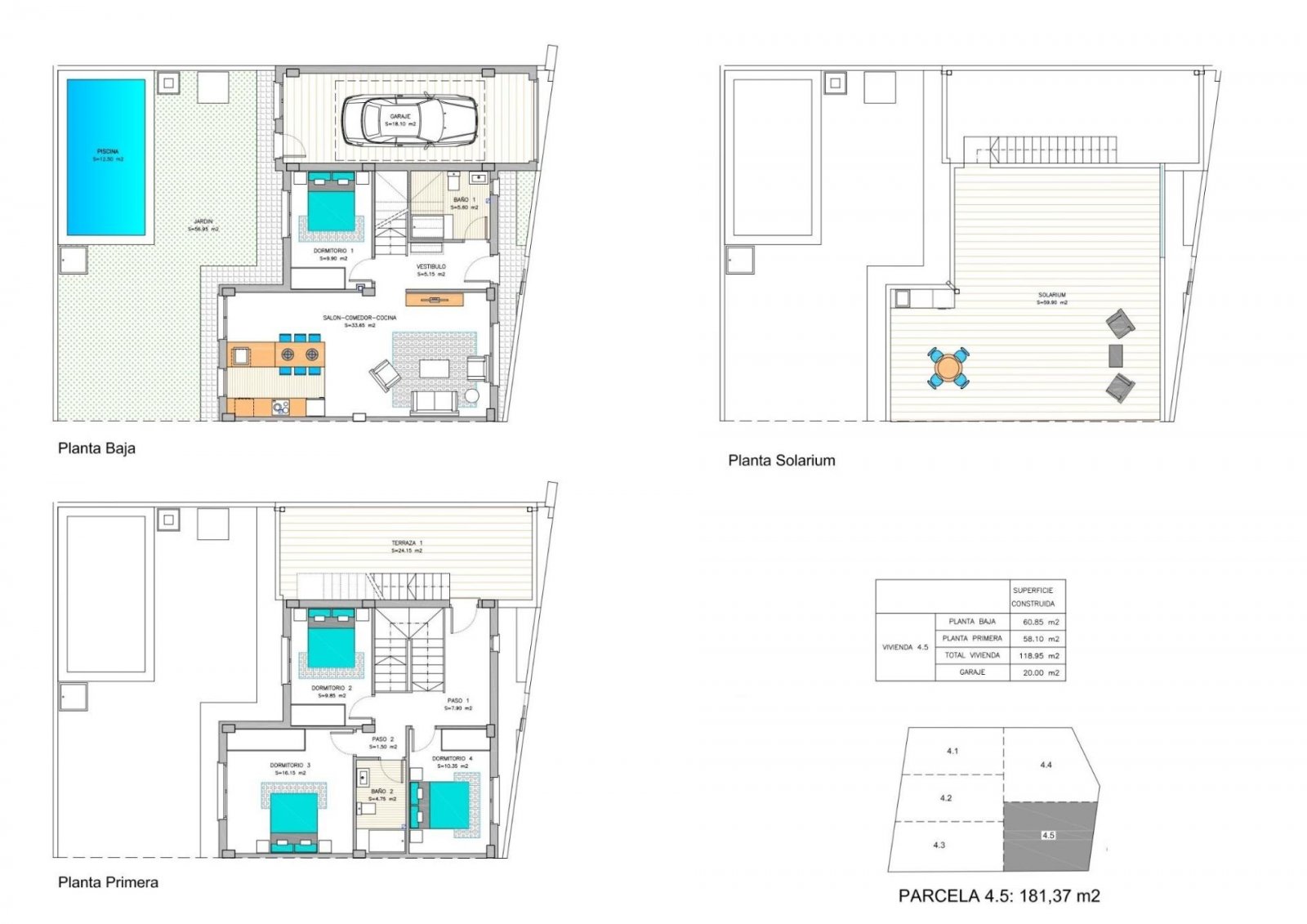
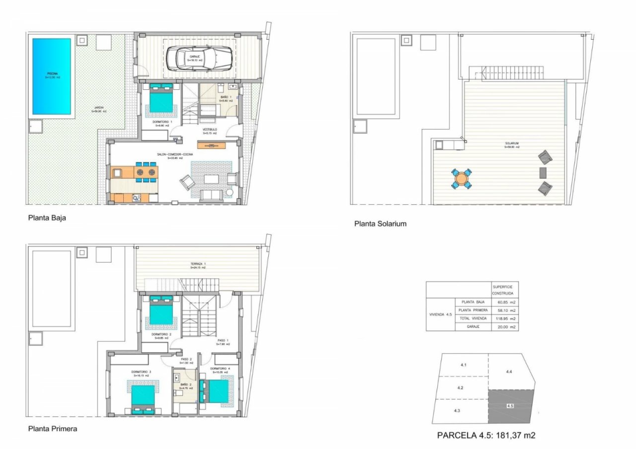
 118 m²
Grundstück ca.:
 181 m²
Zimmeranzahl:
 5
												NEUGEBAUTE ANLAGE IN LOS BELONES, LA MANGA MAR MENOR
Luxuriöser Neubaukomplex mit 5 Immobilien (3 Stadthäuser und 2 Villen) mit privatem Swimmingpool, überdachter Garage, Innenhof, Solarium mit Sommerküche und Vorinstallation für das Aufladen von Elektrofahrzeugen.
Jedes Haus verfügt über 4 Schlafzimmer und 3 Bäder, wobei 3 größere Schlafzimmer zur Auswahl stehen. Die Wohnungen sind elegant und funktionell eingerichtet und verfügen über voll ausgestattete Küchen, inklusive Elektrogeräte. 
Die Schlafzimmer sind mit gefütterten Schränken und Schubladen ausgestattet und verfügen über eine Vorinstallation für eine Klimaanlage.
Los Belones ist ein sehr beliebtes großes Dorf nur eine kurze Fahrt vom berühmten La Manga Club und 1 km von den Sandstränden des warmen Mar Menor und 3 km vom schönen Mittelmeer entfernt.
Das Dorf ist eine blühende Umgebung typisch spanisch und bietet eine große Auswahl an Tapas-Bars, Restaurants und eine Fülle von Annehmlichkeiten. Jeden Dienstag findet hier ein Wochenmarkt statt, der bei Einheimischen und Touristen sehr beliebt ist.
Der historische Hafen von Cartagena ist in 20 Minuten mit dem Auto zu erreichen.
Flughäfen: Murcia Regionalflughafen (Corvera) ist 35 Minuten Fahrt und Alicante Flughafen 75 Minuten Fahrt.					
- Gated complex
Haustyp: Villa
Provisionspflichtig: nein
Anzahl Schlafzimmer: 4
Anzahl Badezimmer: 2
Terrasse: 1
Garten: ja
Klimaanlage: ja
Umgebung: Einkaufsmöglichkeit
Anzahl der Parkflächen: 1 x Außenstellplatz
Ausblick: Fernblick
Das könnte Ihnen auch gefallen

BURGARD Immobilien
Herr Mike Burgard
Propst-Laumann-Str.25
48727 Billerbeck
Telefon: +49 2543 25559
Mobil: +49 172 5300937
 
							


 
           
          


























































