Finestrat:
  Diese Residenz liegt in der Nähe der Wohnanlage Coblanca in Benidorm und besteht aus 9 einzelnen Villen, jede mit einem privaten Garten mit einheimis 					
					
              Objekt-Nr.: CLD-2925NB          
				



















Preis:
 1.150.000 €
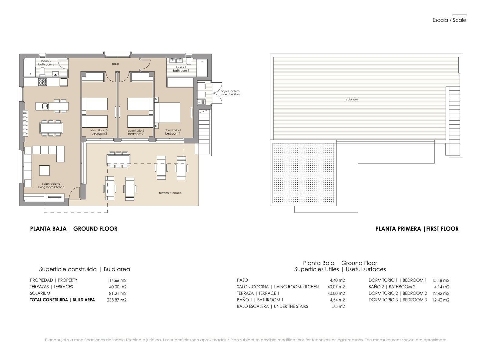
Wohnfläche ca.:
 342 m²
Grundstück ca.:
 511 m²
Zimmeranzahl:
 5
Diese Residenz liegt in der Nähe der Wohnanlage Coblanca in Benidorm und besteht aus 9 einzelnen Villen, jede mit einem privaten Garten mit einheimischen Pflanzen, einem Außenpool und einer Sonnenterrasse, um den mediterranen Lebensstil in vollen Zügen zu genießen. Dieser einzigartige Wohnkomplex mit Sicherheitssystem und Nachtwächter ist in der Region einzigartig. Die Villen erstrecken sich über zwei Etagen plus Keller und Sonnenterrasse. Der Keller ist von außen über eine bequeme Treppe unabhängig zugänglich. Darüber hinaus verfügt es über einen zugänglichen Innengarten, der den Räumen natürliches Licht und frische Luft verleiht.…
       Die privaten Gärten der Villen werden dank des Wartungsservice, der den Bewohnern das ganze Jahr über angeboten wird, makellos gehalten. Zu den exklusiven Gemeinschaftsleistungen gehören außerdem die Wartung und regelmäßige Reinigung der Schwimmbäder sowie kleinere, täglich anfallende Reparaturen im Haushalt. Der Wohnkomplex verfügt über eine geschlossene Anlage mit einem modernen Sicherheitssystem, das rund um die Uhr geöffnet ist. Es handelt sich um die einzige Wohnanlage an der Küste, die über einen privaten Sicherheitsdienst und einen eigenen Nachtwächter verfügt, der nachts den Zugang zum Gemeinschaftsbereich kontrolliert und im Notfall sofort reagieren kann.
 Kontaktieren Sie uns für weitere Informationen!
 Weitere Informationen zur Gegend: Finestrat ist eine charmante und reizende Küstenstadt in der Nähe von Benidorm. Das alte Zentrum dieser spanischen Stadt liegt 5 Kilometer von der Küste entfernt. Dort finden Sie authentische weiße Häuser, aber auch farbenfrohe. Dort können Sie vollkommen entspannen. Für mehr Komfort können Sie beispielsweise in die lebhafte Innenstadt von Benidorm gehen. In der Region finden Sie zahlreiche sportliche Aktivitäten, wie beispielsweise Wassersport, aber auch Klettern und Bergwandern. Eine perfekte Mischung aus Ruhe und Geselligkeit. 
    
- Fitted wardrobes
- Double glazing
Haustyp: Villa
Provisionspflichtig: nein
Anzahl Schlafzimmer: 4
Anzahl Badezimmer: 4
Garten: ja
Pool: ja
Keller: voll unterkellert
Das könnte Ihnen auch gefallen

BURGARD Immobilien
Herr Mike Burgard
Propst-Laumann-Str.25
48727 Billerbeck
Telefon: +49 2543 25559
Mobil: +49 172 5300937
 
							


 
           
          

























