Bigastro:
  In dem relativ unbekannten Dorf Bigastro werden diese neuen Doppelhaushälften gebaut. Die geräumigen Häuser verfügen über nicht weniger als 4 Schlafz 					
					
              Objekt-Nr.: CLD-2914NB          
				























Preis:
 269.900 €
Wohnfläche ca.:
 122 m²
Grundstück ca.:
 175 m²
Zimmeranzahl:
 5
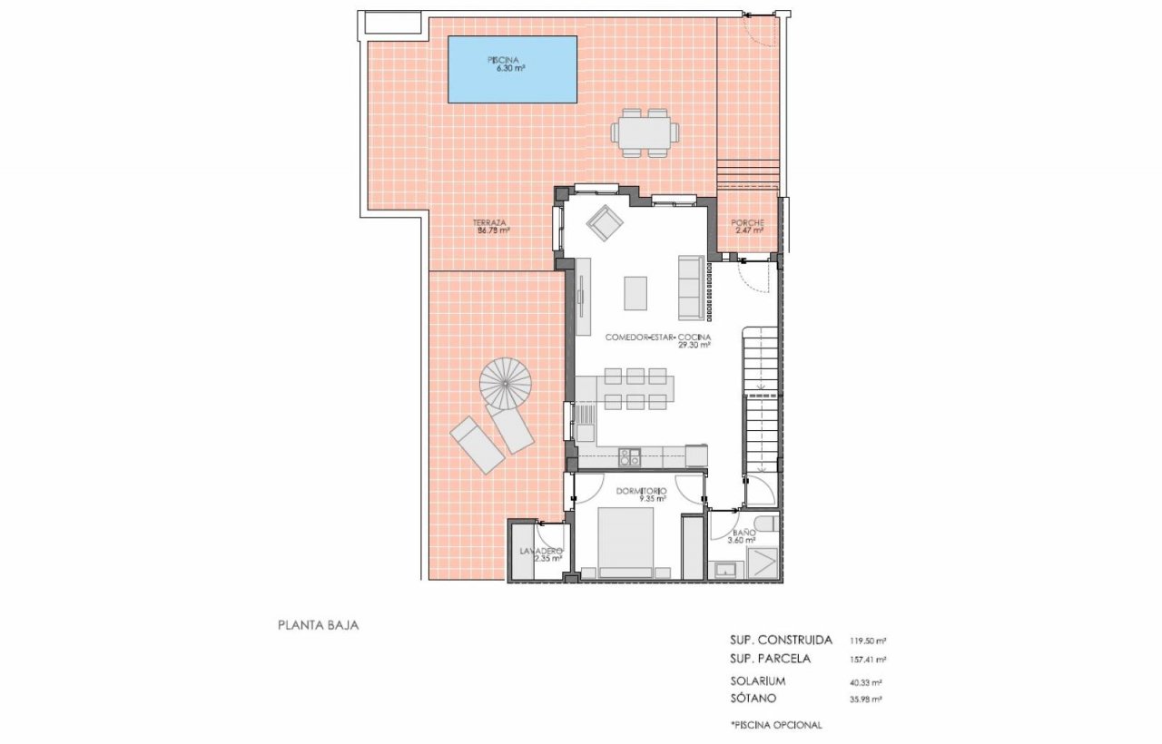
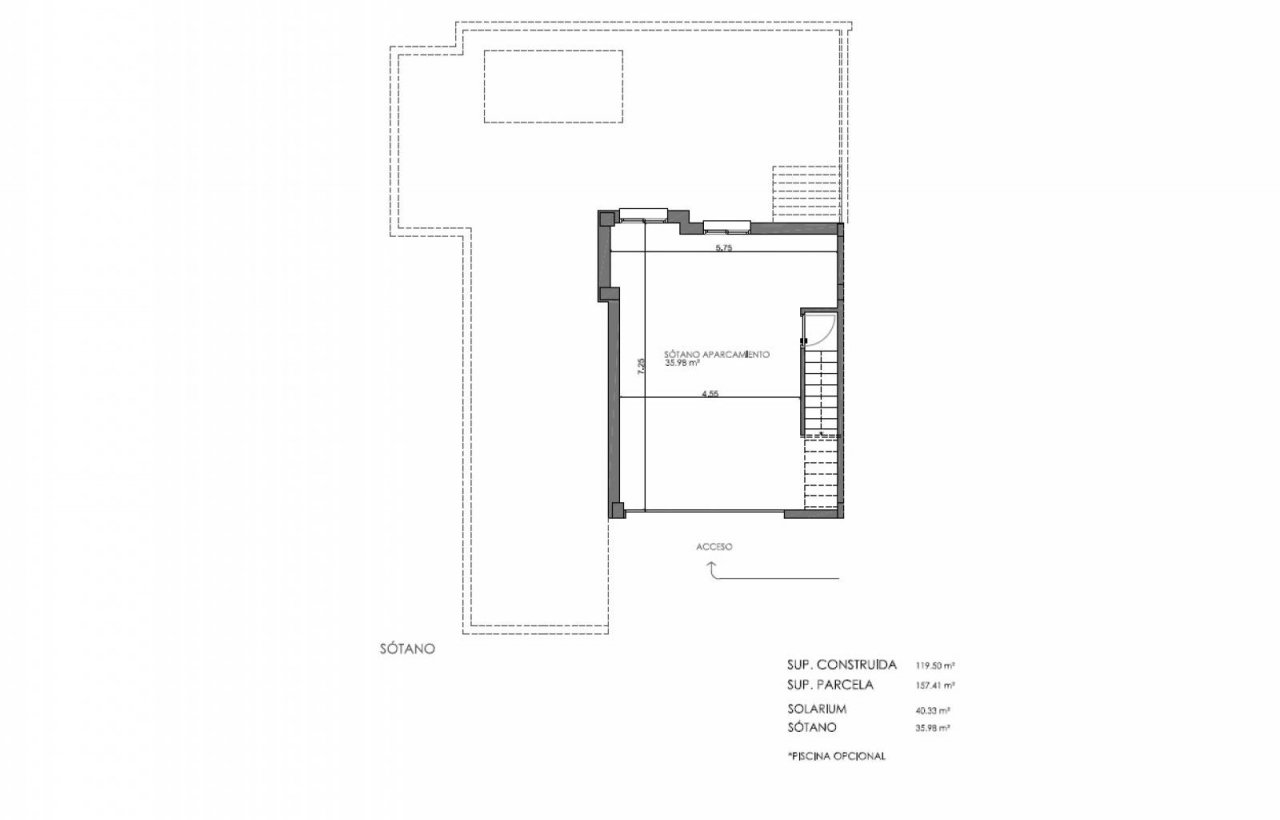
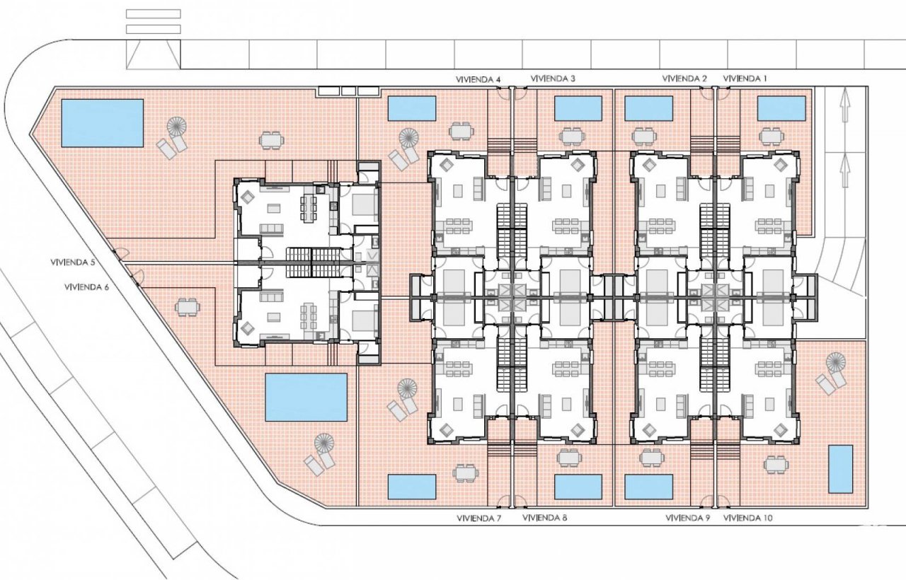
 In dem relativ unbekannten Dorf Bigastro werden diese neuen Doppelhaushälften gebaut. Die geräumigen Häuser verfügen über nicht weniger als 4 Schlafzimmer und 3 Badezimmer, verteilt auf 2 Etagen. Unter dem Haus befindet sich der Keller, in dem sich eine Garage von mindestens 36 m² befindet. Die Gärten sind groß genug für einen privaten Swimmingpool, es gibt jedoch auch einen schönen Gemeinschaftspool. Und das Tüpfelchen auf dem i: Alle Häuser verfügen über eine private Dachterrasse mit kilometerweiter Aussicht. Kontaktieren Sie uns, um Ihren Besuch zu organisieren oder uns Ihre Fragen zu stellen.
 Weitere Informationen zur Gegend: Bigastro ist ein kleines, traditionelles spanisches Dorf im Landesinneren an der südlichen Costa Blanca in der Provinz Alicante. Zwischen Zitrusplantagen und den nahegelegenen Hügeln der Sierra de Orihuela gelegen, bietet Bigastro eine ruhige und authentische Wohnumgebung. Das Dorf ist ideal für alle, die Ruhe und Frieden suchen, aber dennoch nicht weit von modernen Annehmlichkeiten und größeren Städten entfernt sein möchten. Bigastro liegt nur 25 Autominuten von den Sandstränden von Guardamar del Segura und Torrevieja entfernt, während Orihuela, eine Stadt mit reichem historischem Erbe, nur 10 Autominuten entfernt ist. Dank der hervorragenden Anbindung über die Autobahn AP-7 und der Nähe zum Flughafen Alicante-Elche (40 Autominuten) ist Bigastro leicht zu erreichen.
 
- Fitted wardrobes
- Double glazing
Haustyp: Einfamilienhaus
Provisionspflichtig: nein
Anzahl Schlafzimmer: 4
Anzahl Badezimmer: 3
Garten: ja
Pool: ja
Keller: voll unterkellert
Ausblick: Berge
Das könnte Ihnen auch gefallen

BURGARD Immobilien
Herr Mike Burgard
Propst-Laumann-Str.25
48727 Billerbeck
Telefon: +49 2543 25559
Mobil: +49 172 5300937
 
							


 
           
          































































