Los Alcazares:
Exklusive Villen und Bungalows an der Costa Cálida - Design, Komfort und eine privilegierte Lage
Ein Projekt, das Privatsphäre und Gemei
Objekt-Nr.: 12811






















Preis:
350.000 €
Wohnfläche ca.:
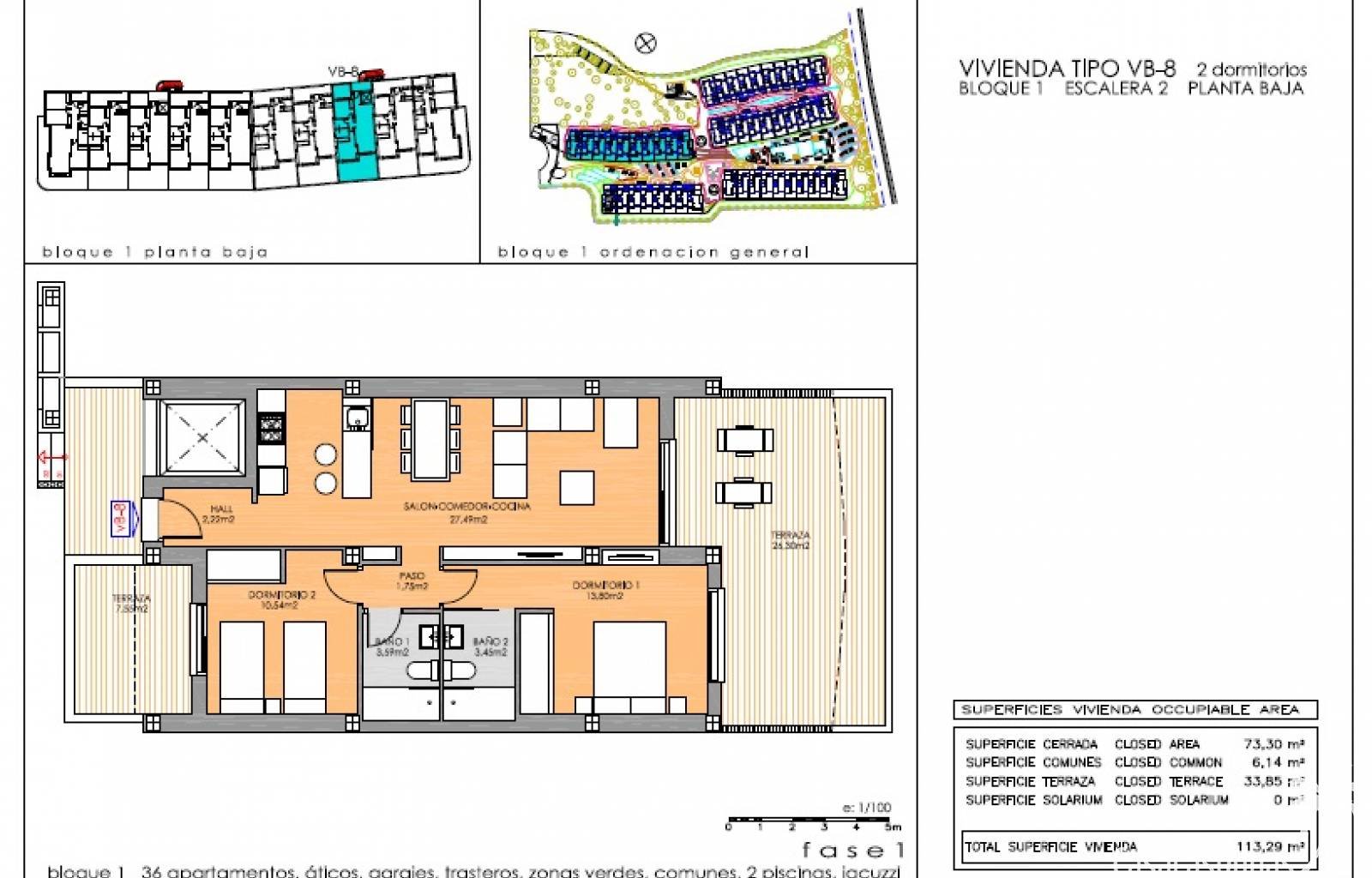
84 m²
Zimmeranzahl:
4
Exklusive Villen und Bungalows an der Costa Cálida - Design, Komfort und eine privilegierte Lage
Ein Projekt, das Privatsphäre und Gemeinschaftsleben vereint
Entdecken Sie ein neues Wohnkonzept an der Costa Cálida, das für diejenigen konzipiert wurde, die die perfekte Kombination aus Privatsphäre, Komfort und Gemeinschaftsleben suchen. Dieser exklusive Komplex bietet freistehende Villen und Bungalows mit Zugang zu großzügigen Gemeinschaftsbereichen und einem Gemeinschaftspool, der das Beste aus beiden Welten bietet: die Ruhe eines privaten Hauses und den Komfort von Gemeinschaftsräumen, die man mit Freunden, Familie und Nachbarn genießen kann.…
Alle Wohnungen verfügen über einen Parkplatz und einen Abstellraum im Keller, was den Bewohnern Sicherheit und Komfort garantiert.
Modernes Design und individuelle Gestaltungsmöglichkeiten
Diese Siedlung bietet eine breite Palette von Wohnungen, die den unterschiedlichsten Bedürfnissen und Lebensstilen gerecht werden:
Bungalows im Erdgeschoss mit privaten Gärten bis zu 122 m².
Bungalows im Dachgeschoss mit großen Terrassen und privatem Solarium.
Ein- oder zweigeschossige, freistehende Villen mit Grundstücken von 201 bis 356 m² und verschiedenen Grundriss- und Ausstattungsoptionen.
Jedes Haus ist so konzipiert, dass das natürliche Licht optimal genutzt wird und großzügige und einladende Räume entstehen. Das Hauptschlafzimmer wurde sorgfältig konzipiert, um Privatsphäre und Komfort zu gewährleisten, indem der Schlafbereich vollständig vom Badezimmer getrennt wurde, um Unterbrechungen durch Licht oder Lärm während der Nacht zu vermeiden.
Qualität und Nachhaltigkeit in jedem Detail
Diese Häuser wurden mit hochwertigen Materialien gebaut und mit nachhaltigen Technologien wie Sonnenkollektoren und Aerothermie ausgestattet, um die Energieeffizienz zu verbessern.
Herausragende Merkmale:
Motorisierte Jalousien in den Schlafzimmern.
Gepanzerte Eingangstür für mehr Sicherheit.
Vorinstallation einer kanalisierten Klimaanlage.
Moderne Bäder mit Trennwänden aus gehärtetem Glas und Hängemöbeln mit LED-Spiegeln.
Strategische Lage in Los Alcázares
Nur wenige Meter vom prestigeträchtigen Golfplatz Serena und 1 km von den Stränden des Mar Menor entfernt, genießt dieser Komplex eine privilegierte Lage in Los Alcázares, einer der vielversprechendsten Gegenden der Costa Cálida.
Darüber hinaus ermöglicht die gute Anbindung an die Autobahn AP-7 eine schnelle Verbindung zu anderen Zielen in der Region und erleichtert den Zugang zu wichtigen Dienstleistungen wie Supermärkten, Sportzentren, Schulen und Apotheken.
Entfernungen zu interessanten Orten
La Serena Golf - 1 km (2 Minuten mit dem Auto).
Strand Mar Menor - 1 km (2 Minuten mit dem Auto oder 10 Minuten zu Fuß).
Flughafen Murcia - 35 km (30 Minuten mit dem Auto).
Hafen von Cartagena - 22 km (20 Minuten mit dem Auto).
Lokales Einkaufszentrum - 3 km (5 Minuten mit dem Auto).
Ein mediterraner Lebensstil mit hoher Rentabilität
Dieses Projekt stellt nicht nur eine hervorragende Möglichkeit dar, den mediterranen Lebensstil zu genießen, sondern ist auch eine sichere Investition in einem wachsenden Gebiet.
Lassen Sie sich diese einmalige Gelegenheit nicht entgehen. Kontaktieren Sie uns noch heute, um weitere Informationen zu erhalten und Ihr ideales Haus an der Costa Cálida zu reservieren.
- Gated complex
Wohnungstyp: Etagenwohnung
Provisionspflichtig: nein
Anzahl Schlafzimmer: 3
Anzahl Badezimmer: 2
Terrasse: 1
Klimaanlage: ja
Umgebung: Pool, Golfplatz, Einkaufsmöglichkeit
Anzahl der Parkflächen: 1 x Außenstellplatz
Ausblick: Fernblick
Das könnte Ihnen auch gefallen

BURGARD Immobilien
Herr Mike Burgard
Propst-Laumann-Str.25
48727 Billerbeck
Telefon: +49 2543 25559
Mobil: +49 172 5300937





























