Pinoso:
Bauen Sie Ihre eigene Traumvilla in Pinoso ! Es besteht die Möglichkeit, zwischen einem traditionellen Baustil und einem modernen Stil zu wählen. Das
Objekt-Nr.: CLD-2752NBH
















Preis:
337.000 €
Wohnfläche ca.:
180 m²
Grundstück ca.:
10.000 m²
Zimmeranzahl:
4
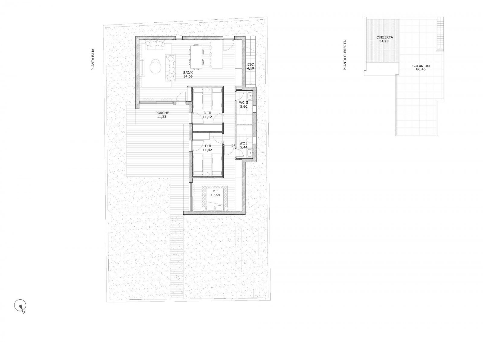
Bauen Sie Ihre eigene Traumvilla in Pinoso ! Es besteht die Möglichkeit, zwischen einem traditionellen Baustil und einem modernen Stil zu wählen. Das Haus steht auf einem Grundstück von mehr als 10.000 m2. Im Preis inbegriffen ist ein 8 x 4 Meter großes Schwimmbad mit einer 2 Meter großen Terrasse rund um den Pool. Je nach Größe des Haustyps dauert der Bau zwischen 7 und 12 Monaten. Die Häuser haben Abmessungen von 120 m2 bis 270 m2. Die Schlafzimmer verfügen über Einbauschränke. Die Küche verfügt über eine Arbeitsplatte aus Verbundwerkstoff, eine Spüle mit Mischbatterie und eine Dunstabzugshaube.…
In allen Schlafzimmern, im Wohnzimmer und in der Küche ist eine Klimaanlage vorinstalliert. Die Badezimmer verfügen über eine Toilette, eine Dusche, eine Glaswand und Badmöbel.
*Weitere Informationen zur Region: Pinoso liegt landeinwärts von Alicante, die Stadt hat mehr als 8.000 Einwohner. Pinoso ist eine traditionelle spanische Stadt mit vielen Mandelhainen, Weinbergen und Olivenbäumen. Im Januar und Februar blühen die Mandelbäume und sorgen für eine wunderschöne Kulisse und einen wunderbaren Duft. Neben lokalen Restaurants und Geschäften verfügt Pinoso auch über ein modernes, rund um die Uhr geöffnetes medizinisches Zentrum und mehrere Zahnarztpraxen. Die Erreichbarkeit ist sehr gut, auch dank des Flughafens Alicante; Den Flughafen erreichen Sie mit dem Auto in ca. 45 Minuten. Der nächste Strand ist 62 Kilometer entfernt. Weitere große Städte in der Nähe sind Murcia und Elche.
Kontaktieren Sie uns für weitere Informationen!
Haustyp: Villa
Provisionspflichtig: nein
Anzahl Schlafzimmer: 3
Anzahl Badezimmer: 2
Pool: ja
Das könnte Ihnen auch gefallen

BURGARD Immobilien
Herr Mike Burgard
Propst-Laumann-Str.25
48727 Billerbeck
Telefon: +49 2543 25559
Mobil: +49 172 5300937































