Los Montesinos:
Dieses Projekt wird auf Grundstücken mit einer durchschnittlichen Größe von 435 Quadratmetern gebaut und liegt 200 Meter von einem Supermarkt, Restau
Objekt-Nr.: CLD-2114NB














Preis:
439.000 €
Wohnfläche ca.:
110 m²
Grundstück ca.:
378 m²
Zimmeranzahl:
4
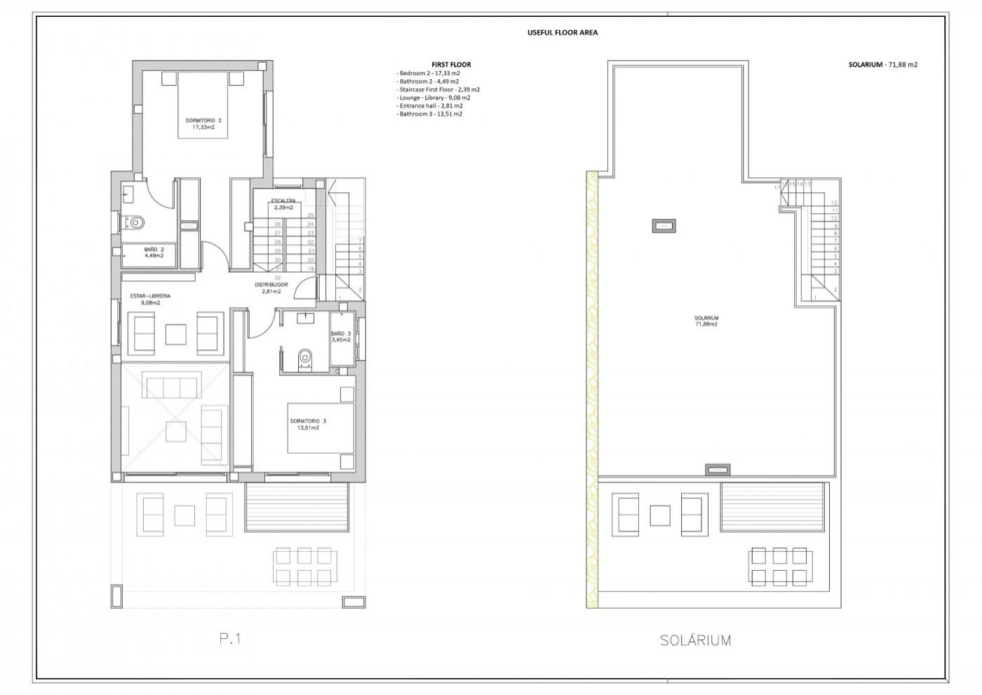
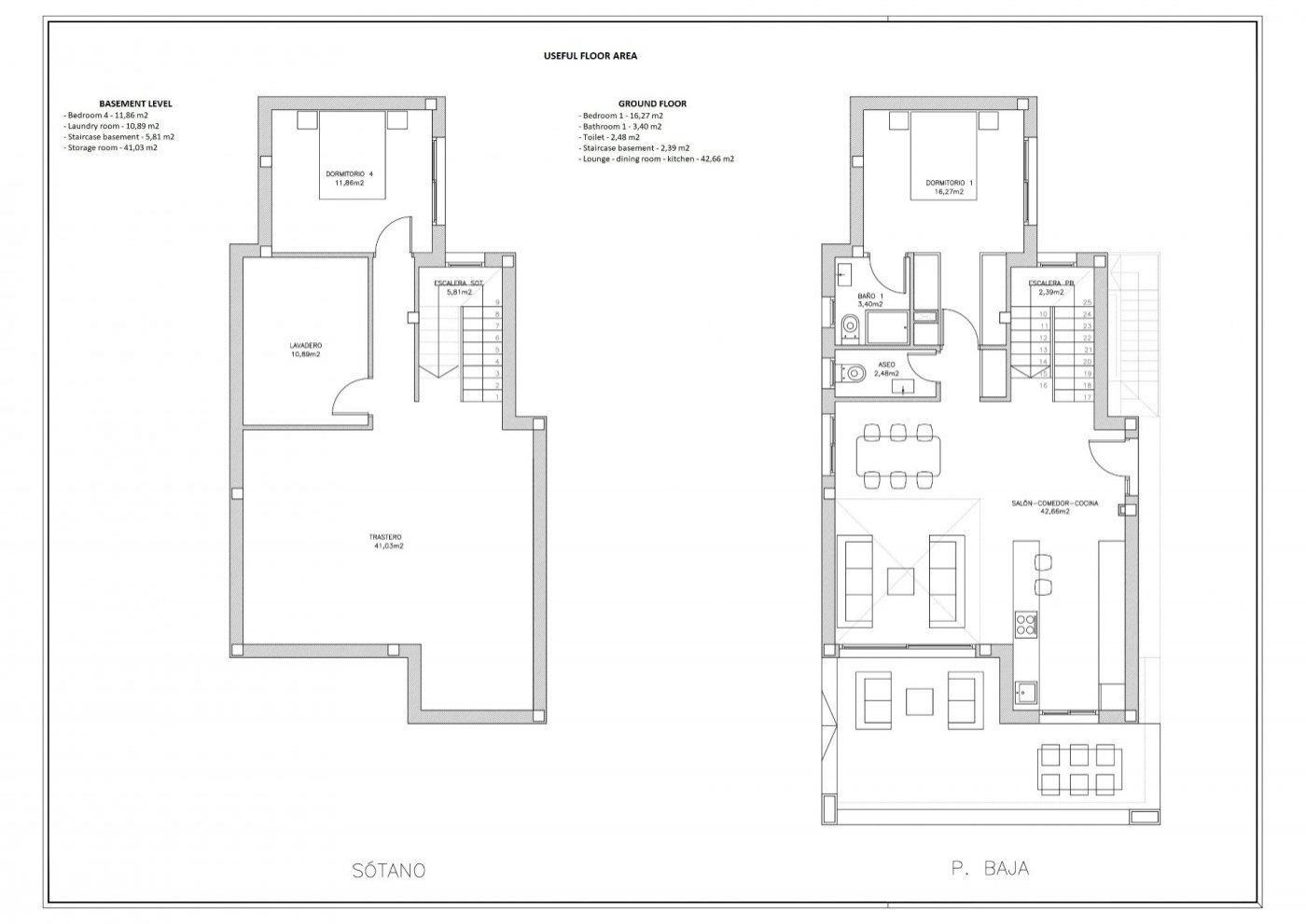
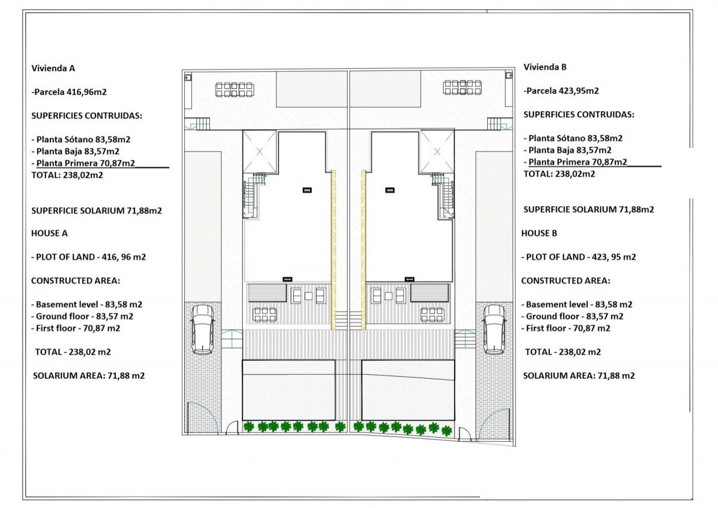
Dieses Projekt wird auf Grundstücken mit einer durchschnittlichen Größe von 435 Quadratmetern gebaut und liegt 200 Meter von einem Supermarkt, Restaurants und Bars entfernt. Wir finden diese geräumigen Villen mit 4 Schlafzimmern in La Herrada, Los Montesinos. Jede Immobilie verfügt über einen privaten Swimmingpool mit einer Größe von vier mal acht Metern. Beim Betreten der Villa finden Sie im Flur einen Schrank für Ihre Mäntel. Danach finden wir eine offene Küche, ein Esszimmer und ein Wohnzimmer. Die großen Fenster lassen viel Licht in das Haus. Hinter der Küche finden Sie zwei geräumige Doppelschlafzimmer, ein Badezimmer und einen praktischen Hauswirtschaftsraum unter der Treppe zum ersten Stock. Im ersten Stock finden Sie die beiden anderen Schlafzimmer, beide mit eigenem Bad. Sie haben auch Zugang zur 30 Quadratmeter großen Dachterrasse, von wo aus Sie einen herrlichen Blick auf die private Terrasse, den Garten und die Umgebung, einschließlich des Salzsees von Torrevieja und der natürlichen Lagune, haben. Obwohl die Standardvilla über vier Schlafzimmer verfügt, besteht die Möglichkeit, eines herauszunehmen, um einen größeren Küchen-, Ess- und Wohnbereich zu nutzen. Zögern Sie nicht, uns für weitere Informationen oder zusätzliche Fotos zu kontaktieren.
Haustyp: Villa
Provisionspflichtig: nein
Anzahl Schlafzimmer: 3
Anzahl Badezimmer: 2
Terrasse: 1
Anzahl der Parkflächen: 1 x Außenstellplatz; 1 x Garage
Das könnte Ihnen auch gefallen

BURGARD Immobilien
Herr Mike Burgard
Propst-Laumann-Str.25
48727 Billerbeck
Telefon: +49 2543 25559
Mobil: +49 172 5300937

































































