San Javier:
Nahe dem Zentrum des Dorfes San Javier finden wir diese 14 Einfamilienhäuser. Zwei davon sind Sondermodelle, über die auf dieser Seite berichtet wird
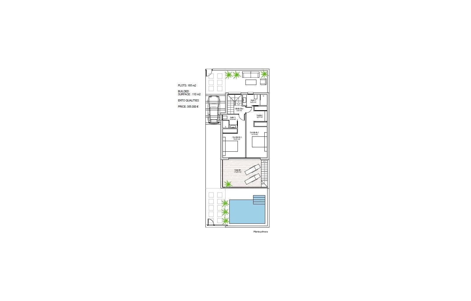
Objekt-Nr.: CLD-2722NBA














Preis:
475.000 €
Wohnfläche ca.:
128 m²
Grundstück ca.:
210 m²
Zimmeranzahl:
4
Nahe dem Zentrum des Dorfes San Javier finden wir diese 14 Einfamilienhäuser. Zwei davon sind Sondermodelle, über die auf dieser Seite berichtet wird. Sie verfügen über 3 Schlafzimmer und 3 Badezimmer und sind auf Grundstücken von 210 m² gebaut. Die Häuser werden sehr komplett geliefert, einschließlich Geräten der Marke Bosch, vollständig installierter Klimaanlage sowie Innen- und Außenbeleuchtung. Im ersten Stock finden wir eine großzügige Dachterrasse mit schöner Aussicht auf die Umgebung. Kontaktieren Sie uns für weitere Informationen oder um Ihren Besuch zu organisieren!
*Weitere Informationen zu einer Stadt in der Region: Santiago de la Ribera ist eine wunderschöne spanische Stadt an der Costa Cálida. Ursprünglich ein Fischerdorf, hat es sich mittlerweile zu einem beliebten Urlaubsziel für Spanier und Touristen aus dem übrigen Europa entwickelt. Hier können Sie die wunderschönen, nicht weniger als 2 Kilometer langen Sandstrände mit Palmen genießen, die Ihnen sofort Urlaubsgefühle vermitteln. Für den täglichen Einkauf gibt es genügend Einkaufsmöglichkeiten, viele Einkäufe können Sie aber auch im Nachbarort San Javier tätigen.
- Fitted wardrobes
- Double glazing
Haustyp: Villa
Provisionspflichtig: nein
Küche: Einbauküche
Anzahl Schlafzimmer: 3
Anzahl Badezimmer: 4
Garten: ja
Das könnte Ihnen auch gefallen

BURGARD Immobilien
Herr Mike Burgard
Propst-Laumann-Str.25
48727 Billerbeck
Telefon: +49 2543 25559
Mobil: +49 172 5300937




































