Torrevieja:
  Diese beiden wunderschönen modernen Villen werden in Torrevieja gebaut. Diese beiden Häuser liegen nur wenige Schritte vom berühmten Strand La Mata e 					
					
              Objekt-Nr.: CLD-2690NB          
				









Preis:
 730.000 €
Wohnfläche ca.:
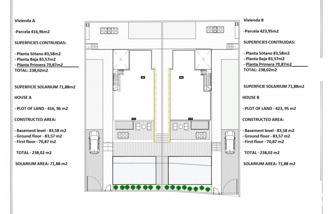
 238 m²
Grundstück ca.:
 420 m²
Zimmeranzahl:
 5
Diese beiden wunderschönen modernen Villen werden in Torrevieja gebaut. Diese beiden Häuser liegen nur wenige Schritte vom berühmten Strand La Mata entfernt. Die Häuser verfügen über 4 Schlafzimmer und 3 Badezimmer sowie eine separate Toilette, eine Küche und zwei Wohnzimmer. Natürlich gibt es einen Swimmingpool, der im sonnenverwöhnten Torrevieja an der Costa Blanca für die dringend benötigte Erfrischung sorgt. Ihr Auto können Sie auf Ihrem eigenen, komplett eingezäunten Grundstück parken. Das Grundstück besteht aus 420 m² und die bebaute Fläche beträgt 238 m².…
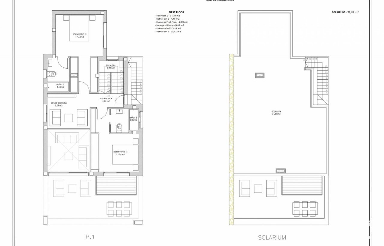
       Neben dem Balkon im ersten Stock und der schönen Gartenterrasse am Pool gibt es auch eine sehr großzügige 72 m² große Dachterrasse. Sie werden zu jeder Tageszeit einen wunderbaren Ort zum Entspannen im Freien oder zum Treffen mit Freunden oder der Familie finden. Im Keller finden Sie das vierte Schlafzimmer, einen großen Abstellraum und eine separate Waschküche.
 Kontaktieren Sie uns für weitere Informationen!
 *Weitere Informationen zur Region:
 Im Sommer lockt Torrevieja viele Sonnenhungrige an, aber auch Wintergäste haben hier in großer Zahl ihren festen Platz gefunden. In der unmittelbaren Umgebung können Sie nach Herzenslust Rad fahren und wandern, einschließlich des Mata-Naturparks, der für seine Salzwasserlagunen und rosa Flamingos bekannt ist. Besonders beliebt sind die Seen bei Menschen mit Herzproblemen, Rheuma, Arthritis oder Asthma, denen die Heilkräfte der Salzseen in Kombination mit dem warmen Klima und der sauberen Luft Linderung verschaffen sollen.
 Kontaktieren Sie uns für weitere Informationen! 
    
Haustyp: Villa
Provisionspflichtig: nein
Anzahl Schlafzimmer: 4
Anzahl Badezimmer: 3
Pool: ja
Das könnte Ihnen auch gefallen

BURGARD Immobilien
Herr Mike Burgard
Propst-Laumann-Str.25
48727 Billerbeck
Telefon: +49 2543 25559
Mobil: +49 172 5300937
 
							


 
           
          


























